
International architects Hawkins\Brown have been awarded the tender for the Norman-themed visitor centre in New Ross, Co Wexford.
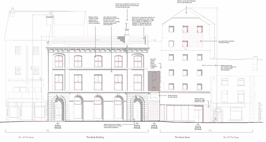
The project transforms the former Bank of Ireland building and adjacent Grain Store into a multi-purpose tourist attraction with café, retail, and interactive exhibition spaces. A building to the rear of the Grain Store will be demolished, replaced by a new pavilion for teaching and events, featuring an enclosed courtyard.
Upper levels allow views down to a map of Norman Wexford in the courtyard stonework. The centre provides a new home for the Ros Tapestry and opens in 2027 for the European Year of the Normans.
Rachel Dunne shared “For us, it was important that the design feels like it truly belongs in New Ross – shaped by its history, yet alive to the way people experience the town today. By bringing new life to these historic buildings and reconnecting the high street with the river, we want to create a place where people can come together, learn, and share.”
Colin Mackay shared “We’re thrilled to work with Wexford County Council and Fáilte Ireland on the design and delivery of the Norman-themed visitor centre. This project represents an opportunity to build on the reinvigoration of New Ross through creating an attraction of scale for local, national and international visitors. The support from both clients has been hugely positive and ambitious; it’s been a pleasure to work with them through the planning process, and we look forward to continuing our collaboration during delivery.”
Eddie Taaffe shared “The centre encapsulates the Norman history still evident throughout New Ross and the Hook Peninsula, and will be the gateway to Norman Wexford for visitors, while also regenerating two prominent properties in the centre of the town. It will play a strong part in Ireland’s commemoration of the 1000th Anniversary of the birth of William the Conqueror, the first Norman King of England.”
Orla Carroll shared “By creating a compelling, all-weather experience that brings the Norman story to life, this project will encourage visitors to stay longer and explore more of the area, and the wider Ireland’s Ancient East region. It also closely aligns with the objectives of Fáilte Ireland’s recently launched Wexford Destination and Experience Development Plan, which aims to develop a sustainable tourism destination by extending the tourism season and spreading business across all parts of the region over the next five years.”



